『贅沢ライフ八王子』八王子駅前の3LDKファミリータイプの新築マンション【八王子・多摩エリアのおすすめ賃貸物件情報】
本日もアミューズ不動産スタッフが記事をの最新の賃貸情報から、『八王子エリアのおすすめ賃貸物件』をピックアップしてご紹介させて頂きます!
ADVERTISING
贅沢な暮らしを八王子で実現! 新築で設備充実の3LDKマンション『VITA八王子』


今回 紹介するのは八王子市南新町にある新築貸マンション 『VITA八王子』でございます。
JR中央本線 八王子駅から徒歩12分の距離にございます。八王子駅周辺には、商業施設が多数点在しており、日常の買い物からファッションなどのショッピングまで駅前で済ますことができます。
また、近くには京王線の京王八王子駅もあるため、2路線利用することができます。さらに東京駅などの都心までは1時間ほどで行くことができるため、交通の利便性も兼ね備えております。
それでは早速 物件紹介に移ってまいります。
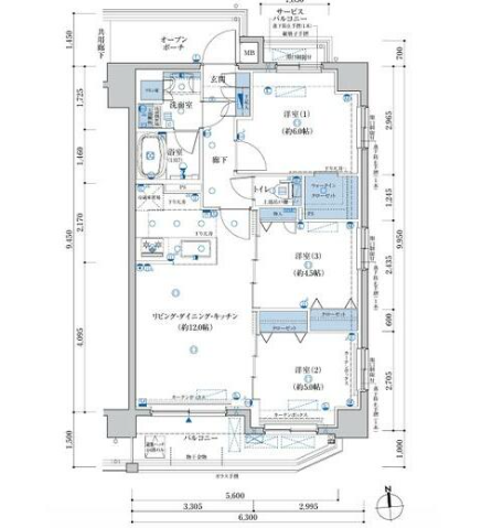
こちらの物件は間取りが3LDKの新築マンションとなっております。玄関から向かって右側に洗面室や浴室などの水回りスペースがあり、奥にはLDK、左側には洋室が3部屋並んでおります。


LDKは約12帖の広さとなっており、通路側にキッチンのある長方形のLDKとなっております。長方形の間取りのため、多様なレイアウトに対応ができます。
キッチンは左半分が開けているタイプのカウンターキッチンとなっており、配膳をスムーズにすることができます。また、3口コンロとグリル、シンクがコンパクトにまとめられたシステムキッチンとなっており、毎日の家事を快適に済ますことができます。
LDKと隣接している2部屋の洋室はドアがスライド式となっており、開放すればLDKの延長スペースとして使用することができます。

バルコニーの床は木目調のデザインとなっており、オシャレなデザインでリラックススペースとしても利用することができます。



洗面台、浴槽、トイレなどの水回り設備は新品特有の輝きを放っており、快適に使用することができます。また、洗面台も幅が広いものとなっており、3面鏡となっております。
水回りスペースはブラウンやベージュなどのカラーのシンプルなデザインとなっており、スペースが広めとなっているため、落ち着いて称することができます。


洋室は玄関から順番に、約6帖、約4.5帖、約5帖の広さとなっております。また、すべての部屋に収納スペースが完備されており、約6帖の洋室にはウォークインクローゼットが設置されております。
約6帖と約5帖の洋室は二面採光となっており、約6帖の洋室には小さなサービスバルコニーも設置されているため、日当たり良好となっております。

玄関には幅の広いシューズボックスが設置されており、たっぷり収納することができます。
こちらのお部屋は設備が非常に充実しており、浴室には冬場でも快適にお風呂に入れる浴室暖房に、カビ予防や雨の日の物干しに役立つ浴室乾燥機が設置されております。また、防犯面はオートロックやモニター付きインターホンも設置されており、ドアはダブルロックとなっております。
新築で設備充実の3LDKマンション『VITA八王子』で、贅沢で豊かな暮らしを実現してみませんか。

〖VITA八王子 物件詳細〗
所在地:八王子市南新町22
アクセス:JR中央本線 八王子 徒歩12分
築年数:2025年03月 新築
建物構造:RC
賃料:¥215,000円
共益費:なし
礼金:なし
敷金:なし
間取り:3LDK
専有面積:61.11㎡
現況:空家
入居時期:2025年12月下旬予定
※募集情報は2025年11月20日時点のものとなりますので、最新の空き状況・その他詳細はお問い合わせ下さい。
八王子・多摩エリアの賃貸・売買 お部屋探しのご相談はアミューズ不動産にお任せください!🏡🏢

以上、AMUSE(アミューズ)不動産スタッフがご紹介する本日のオススメ物件情報でした!
AMUSE(アミューズ)不動産はご案内させて頂くスタッフの宅建士保有率100%!不動産取引というものを楽しんで頂く為の各種サービスを交えながら、皆様にとっての最大の価値を提供できます様、専門のスタッフがご案内をさせて頂きます。
一般的な不動産の売買・賃貸物件のご紹介はもちろんですが、店舗や事務所、投資用不動産のご購入を検討されている方に向けた投資用不動産のご紹介や管理、土地活用のご提案など様々なニーズに合わせて経験豊富なスタッフがお客様の「専属のエージェント」となり、ご安心、ご満足いただけます様、ワンストップでサポートさせて頂きます。まずはお気軽にお問い合わせ下さい💡


























































