『垂直に使い倒す。ガレージ・お店・仕事場の三位一体』八王子の1Fガレージ・2F店舗・3F事務所の一棟貸ビル【八王子・多摩エリアのおすすめ店舗・事務所物件情報】
本日もアミューズ不動産スタッフが最新の物件情報から、『八王子・多摩エリアのオススメ店舗・事務所物件』をピックアップしてご紹介させて頂きます!
ADVERTISING
重飲食対応! フルリノベーションビルをフルに活用できる! 八王子市にある一棟貸ビル『リノビル』


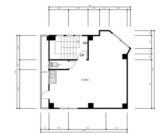
(1F 図面)

(2F 図面)

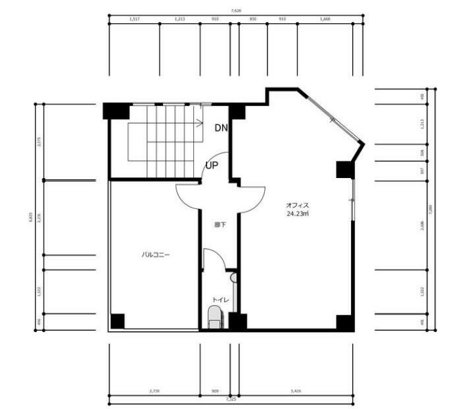
(3F 図面)
今回ご紹介する店舗物件は、八王子市長房町にある『リノビル』でございます。
JR中央本線 西八王子駅から徒歩24分、バスで9分の距離にございます。物件から徒歩4分の場所に複合型商業施設の「コピオ」があり、中にはスーパーや百均が内設されております。また、コピオの道路を挟んだ隣には「カインズ」もあるため、物件周辺は買い物に訪れる人が多いエリアとなっております。
それでは、さっそく物件紹介にうつってまいります。
こちらの物件は、3階建ての一棟貸ビルとなっております。1階は土間となっており、ガレージや倉庫として使用することができます。2階は店舗部分となっており、約40㎡の広さがございます。3階は事務所スペースとなっており、使いやすい縦長の間取りとなっております。



1階の前方にはシャッターが付いており、ガレージとしても倉庫としても快適に使用することができます。
また、1階には高い位置に窓が付いており、換気などに役立てることができます。


こちらは2階の店舗部分の写真となっております。L字型の間取りとなっており、厨房スペースや控室の設置がしやすい間取りとなっております。
また、外壁沿いに窓が複数設置されており、広々とした空間の演出と採光に役立ちます。


こちらは3階の事務所スペースの写真となっております。青色のアクセントクロスが主要採光面の窓に配置されており、ポップな空間演出となっております。また、窓が全体で4つも設置されているため、明るい室内で快適な事務所として使用することができます。

3階の事務所スペースの反対側にはバルコニーが設置されており、広々としたスペースのため、休憩スペースや談話スペースなど、様々な活用方法がございます。


階段部分は黒色を基調としたビンテージなデザインとなっております。また、背の高い窓が立ち並ぶデザインがオシャレで、来店したお客様の期待を膨らませることができる構造となっております。

玄関はタイルやドアが綺麗にリフォームされており、お客様や従業員の方が明るい気持ちでビル内に入ることができます。
1Fガレージ、2F店舗、3F事務所をフルに活用すれば、最強のあなたのビルが完成します!フルリノベの一棟貸ビル『リノビル』で、仕事始めてみませんか。
(※本物件は重飲食営業可能となっておりますが、ガスの引き込みが必要となっております。予めご承知ください)

【 リノビル 物件詳細 】
住所:東京都八王子市長房町551-62
建物面積:98.80㎡
築年数:1975年07月
建物構造:RC
賃料:16.50万円
管理費:なし
礼金:1カ月
敷金:1か月
保証金:なし
現況:空
引渡し:即時
契約期間:3年
※募集情報は2026年4月13日時点のものとなりますので、最新の空き状況・その他詳細はお問い合わせ下さい。
八王子・多摩エリアの『店舗・事務所物件』のご相談はアミューズ不動産にお任せ下さい!🏢🏠

以上、AMUSE不動産スタッフがオススメする【八王子・多摩エリアのオススメ店舗・事務所物件情報】でした!
AMUSE(アミューズ)不動産はご案内させて頂くスタッフの宅建士保有率100%!不動産取引というものを楽しんで頂く為の各種サービスを交えながら、皆様にとっての最大の価値を提供できます様、専門のスタッフがご案内をさせて頂きます。
一般的な不動産の売買・賃貸物件のご紹介はもちろんですが、投資用にて不動産のご購入を検討されている方に向けた投資用不動産のご紹介や管理、土地活用のご提案など様々なニーズに合わせて経験豊富なスタッフがお客様の「専属のエージェント」となり、ご安心、ご満足いただけます様、ワンストップでサポートさせて頂きます。まずはお気軽にお問い合わせ下さい💡


























































